农村旧房改造经典案例丨妙变民宿
改造前

旧房改造 
设计基本保留了原有农舍建筑及院落围合的外观肌理和空间关系,使其可以顺利融入村庄脉络,保留乡村记忆,但根据周边环境做出了适当的调整。一些已经破损漏雨的屋顶进行了下架重修的处理,但材料和工艺上还是延续了当地传统的石板瓦顶,一处已经坍塌的房舍顺势改为了室外就餐凉亭,丰富了院落间的层次。
改造后

旧房改造 
旧房改造 
入口处结合原有耳房改建成的独立厨房和Si人影院,既方便了农民管家的实际运营,又丰富了这样一个大群组院落的功能设置。院内的公共空间例如餐厅和客厅被安排在了院落的中间位置,相互之间既分又合。
旧房改造 
旧房改造 
旧房改造 
室内就餐区直接通联到了室外凉亭,而透过客厅又可以看到自然的山石景观。为了保证主要居住空间的私密性,同时也为了避免将最美的山景开门即见,我们在正房面向入口院落一侧加盖了外廊,上方的玻璃顶让斑驳树影和灿烂阳光洒进室内,半透明的U型玻璃墙将苍翠的山景藏于其后,它所包裹的空间里渗出的光影又象灯笼一样照亮了院落。
旧房改造 
旧房改造 
原有的建筑中布置了六间卧室,依照实际情况形态各有不同,有的自带起居室,有的淋浴间可以直面山景。南侧的山坡同建筑自然围合成了一个小的开放空间,我们把这里设计成了一个私密的休憩平台,原有的山石被保留在了平台中央成为了视觉焦点。原有的封闭陈旧的建筑立面被通透的玻璃幕墙所替代。
旧房改造 
旧房改造 
旧房改造 
原有的结构柱梁被暴露在室内成为自然的装饰,同时也被新建的外维护结构保护不受风雨侵袭。针对传统建筑坡瓦顶出檐小的问题,新加出的钢结构雨篷形成的檐下空间和从室内伸出的木平台使得室内的活动可以自然延展到室外。
旧房改造 
旧房改造 
家具尽量采取现代简约风格的产品,强调设计的当代性及舒适度。自然轻松的调性可以很好的融入到农村的大环境中,同时避免过于厚重或是符号化强烈的家具对窗外的景色形成干扰。我们的设计原则是尽量就地取材,节约成本的同时也自然的体现出当地文化。
旧房改造 
与以往传统的单一建筑项目不同,我们试图探寻一种崭新的商业模型来解决当前中国农村普遍存在的社会问题。传统的村落年久失修,大量空置农舍破败不堪,基础设施落后。村中的青壮年大多进入城市打工谋生,留下村中大量老年及儿童无人照料。
旧房改造 
由于这些村落大多地域偏远,农产品不便运出,进一步加剧了当地的贫困。而另一方面,城市人又受生活压力和空气污染等因素所困,希望周末能到郊区放松身心,但苦于找不到有品质保障的落脚点。我们的模型是在村子里面找到被空置的房屋,通过设计,用最快的的时间和最低的成本达到一定的居住品质,之后培训当地的农民做客房服务,并由专门的团队根据当地的农作物开发出餐饮菜单,最后利用互联网平台进行销售。销售的75%归当地农民,25%覆盖我们这个服务平台的成本。我们在一年的时间里已经完成了将近四十个院落的改造,成本基本控制在了60美元/平方英尺(涵盖了从场地清理,建筑改造,室内硬装,家具陈设,灯具,机电,上下水等所有费用),改造时间大概不到两个月。
旧房改造 
利用当地材料和劳动力极大的降低了后期的运营成本,而将收入的大部分分给当地农民又使得商业模型变得稳定,同时吸引了越来越多的农民愿意将手中不用的房屋提供给我们进行合作。已经开放经营的院落销售情况火爆,农民管家的收入远远超过了他们进入城市打工的收入。这使得很多本村的青壮年劳动力开始返回村子加入我们,从而间接的解决了很多社会问题。
旧房改造 
△ 改造前平面图
旧房改造 
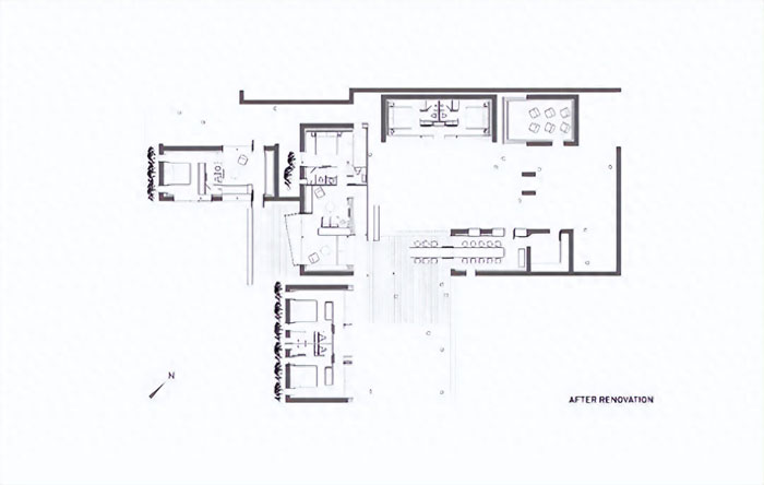
△ 改造后平面图